EV Charging and Installation

Power the future with professional EV charging station installations for commercial and industrial properties by SEPIA Energy.

Driving the Future of Energy with EV Charging

Prepare your business for the electric vehicle revolution. SEPIA Energy provides comprehensive EV charging solutions designed for commercial and industrial properties. Whether it's for employee convenience or customer use, we ensure your charging stations are efficient, reliable, and future-ready.

We repair broken or vandalized electric vehicle (EV) equipment, and we offer services to remove or relocate and maintain it.

Why Choose SEPIA Energy for EV Charging?

Expert Installations

From design to implementation, we handle every step with precision.

Scalable Solutions

Whether you need a single charging station or a network of EVSE units, we deliver.

Compliance & Safety

All installations meet the latest safety standards and regulations.

EVITP Certified

The EVITP program was designed to provide qualified electricians with the most comprehensive training available in the market today. All EVITP Certified Electricians must pass a certification exam for proof of knowledge and skill

Our Services Include

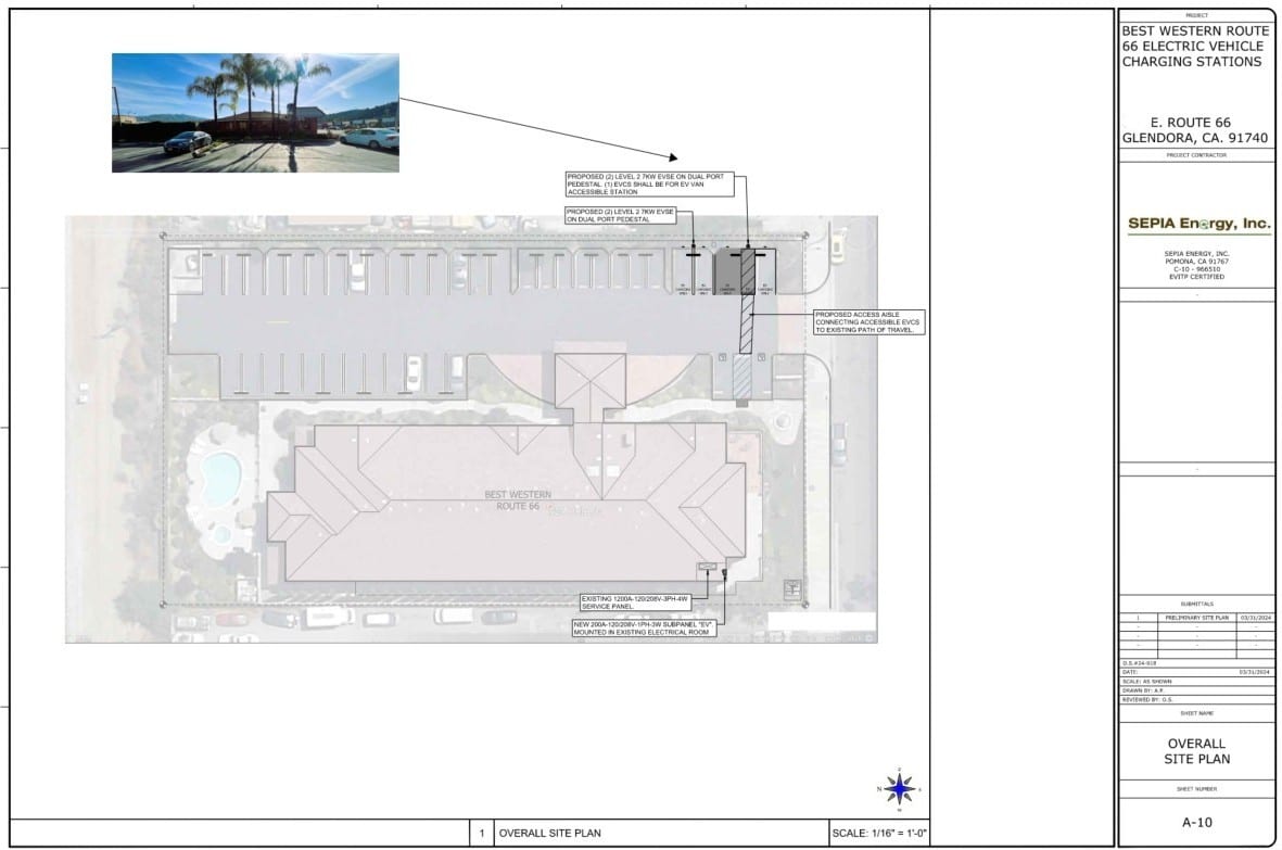
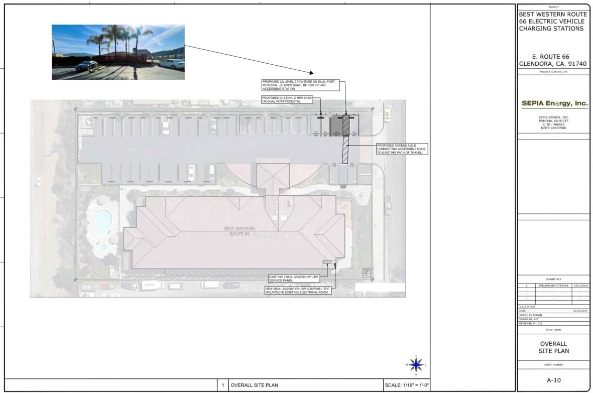
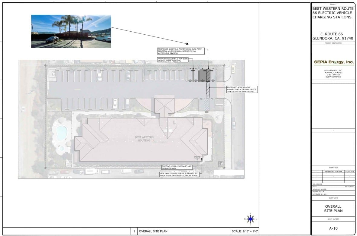
EVSE (Electric Vehicle Supply Equipment) installations

 

 

Design and permitting for EV charging stations

 

 

Electrical upgrades for high-capacity EV chargers

 

 

Maintenance and support for installed systems

 

 

Industries We Serve

SEPIA Energy provides installations and upgrades for a range of industries, including:

Commercial office spaces
Manufacturing and industrial facilities
Retail and hospitality sectors
Medical and healthcare buildings
Government, State, and Educational Facilities
We are DBE / SBE certified
Supplier clearinghouse
metro logo
Caltrans logo
NMSDC logo
SEPIA Energy Logo
© SEPIA - All rights reserved